注文住宅 輸入住宅を埼玉・東京・多摩で原価公開!

    住まいの夢空館

Beハウスグループ

TEL 04-2964-1706


   埼玉県・東京都下で輸入住宅・注文住宅を原価公開し、施主支給システムを採用!不動産相談可!

お客様の声

性能と特長

 

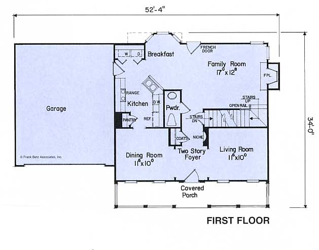
輸入住宅の間取りです。

 

 

 


 注文建築は当社へ  

埼玉・多摩・東京で輸入住宅を建てる。

この家の間取りで特徴的なのはリビングの考え方です。
一階のリビングよりファミリールームというのがあり
こちらの方が大きいですね! これはリビングはお客さん用
で、家族はファミリールームと使い分けているのです。

水周りも主寝室にマスターバス、子供部屋には小さめのバスがあり
向こうではまず夫婦の寝室というものから間取りを考えますので
水周りがトイレも含めてこうなるのでしょう。

下は平屋で日本でこの大きさは厳しいですね。

 

 

トップへ戻る
1  2  3  4  5  6
 トピックス  

平成も23年を迎えました。年頭よりマスコミ各社は卯年は株価が平均23%上昇すると言っていました。円高が止まり景気が良くなることを期待したいですね。
本年も宜しくお願いします。

 

 お役立ち情報  

 

 

ロートアイアン施工例
当社施工例を掲載!場所は埼玉県、東京です。

詳細はコチラ


一度読んでください。お客様の声

当社でお建てになりましたお客様の生の声です。

詳細はコチラ


住宅ローンあれこれ住宅ローン
意外と一筋縄でいかないのがローン関係です。

詳細はコチラ


ツーバイは枠組壁工法と言います。2×4とは
2×4の魅力!もちろん在来工法も難なくに施工できます。

詳細はコチラ


埼玉・東京で原価公開原価は!
ご希望の方に原価公開をしております。無料提示、無料相談

詳細はコチラ

埼玉・東京地区です。小中学校
埼玉県・東京都下の小中学校の学区を調べましょう。

詳細はコチラ


窓は家の心です。相互リンク
施主支給ドットコムなど、これからも相互リンクを増やします。

詳細はコチラ


お役に立ちます。リンク集
色々と役に立つリンク集です。必見のサイト紹介あり。

詳細はコチラ


全てのお客様のために      

 たけうちハウジングは地元密着30年の活動をしております。内装工事・リフォーム事業を行い、平成元年に新築木造建築をはじめました。多くのアパート建築から戸建木造住宅の新築工事を行い、平成12年より輸入住宅を手掛けるようになりました。

同年フランチャイズ展開しておりますブルースホームに加盟し7年間ブルースホーム入間として活動しました。

平成20年8月を持ちしましてブルースホームを退会し、今では在来工法・2×4工法を含めた木造新築工事、不動産活動・リフォーム活動と幅広く事業を展開しております。

当社の木造注文住宅・輸入住宅は丈夫で長持ちする住まい、快適で人に優しい健康住宅を安価でご提供できるように日々模索しています。 住宅の購入は、一生のうちで数少ない大きなお買い物。 お客様のご希望にお応えできるようにスタッフ一同が一丸となり、日々努力しております。 輸入住宅 注文住宅を埼玉・多摩・東京で販売するたけうちハウジングは、おしゃれな外観と健康に配慮した自然素材の住まいで「家族が笑顔で暮らせる家作り」をご提案します。

施工エリア

●東京多摩地区
東村山市  東大和市  武蔵村山市  立川市  八王子市  日野市  昭島市  国分寺市  国立市  小平市  東久留米市  清瀬市   西東京市  武蔵野市  小金井市  青梅市  羽村市  多摩市  町田市  あきる野市 福生市 「 23区内  練馬区  杉並区 」


●埼玉西部地区
入間市  所沢市  狭山市  飯能市  日高市  新座市  朝霞市  ふじみ野市  川越市  志木市  和光市  富士見市  三芳町  鶴ヶ島市 坂戸市  さいたま市  入間郡

上記以外にも対応できる場合があるのでご相談下さい。

 トップ |  施工例 |  お客様の声 |  性能と特長 |  会社概要 |  お問い合せ
Copyright (c)2003−2010 Takeuchi Housing.All Rights Reserved.